Sign In | Join Free | My chinalane.org
China Henan Mine Crane Co.,Ltd. logo
Henan Mine Crane Co.,Ltd.
Quality Forges Brand,Integrity Waves Future.
Active Member

6 Years

Home > Workshop Overhead Crane >

16 Ton Workshop Overhead Crane System Geared Motor Frequency Control Low Headroom

Henan Mine Crane Co.,Ltd.
Contact Now

16 Ton Workshop Overhead Crane System Geared Motor Frequency Control Low Headroom

Brand Name : Kuangyuan

Model Number : HD

Certification : CE ISO GOST

Place of Origin : Henan

MOQ : 1 set

Price : Negotiation

Payment Terms : L/C, T/T, Western Union

Supply Ability : 35000 Set/Sets per Year

Delivery Time : 35 working days

Packaging Details : Packed by woven plastic cloth, electrical parts and other parts packaged in high quality plywood crate. But the container is also accepted if it is suitable.

tensile of wire rope : 2160KN/MM2

max lifting load : 20t

span : 10.5m-31.5m

max lifting height : 30m

speed : frequency inverter

working duty : A5

lifting speed : 0.4/6 m/min

control : pendent, remote

traveling speed : 20m/min

lifting motor : Gemerny or China

electric cabinet : IP55

voltage : 220v-480v

warranty : one year

name : HD European Overhead Crane

Contact Now

Geared Motor Frequency Control low headroom 16 ton European Overhead Crane

Product description:

European single girder overhead crane is a kind of new generation crane with intelligent feature. The lifting mechanism is European style ND steel wire rope electric hoist . The lifting speed is double. And Cross & long traveling use infinitely variable frequency motor which make the crane travel smoothly. The crane design is based on FEM,DIN, ISO standard, which is extremely safe, ergonomic, convenient, and efficient for material transport. Its compact size structure could save lots of space.

Electrical part of europe type overhead crane:

1. Slip-line power supply;

2. Phase protection, disconnected main power in case of incorrect phase;

3. Independent crane and hoist travelling, also both running at the same time;

The characteristics of wheels

1. Its material selects to use high strength nodular cast iron, thus has good wearability and shock absorption capability.

2. Mondularized design, compact structure, high degree of standardization, easy to assembly parts.

3. DIN standard internal spline connection, automatic positioning, easy to install and dismantle.

Main Features of European single girder overhead crane:

1. The small wheel pressure and small volume can reduce the investment in the preliminary works such as the factory building.

2. Using high-quality components can reduce failure rate and maintenance costs.

3. Low consumption of total power can reduce the costs, it had remarkable energy-saving effect.

4. Variable Frequency control make cranes run smoothly.

5. Standardize the whole crane configuration to make the whole machine more stable.

6. Real-time security monitoring while crane running.

Main Specs:

Capacity t 1-12.5
span m 7.5 10.5 13.5 16.5 19.5 22.5 25.5
Total weight kg 1781~12086
Trolley weight kg 405~740
Max wheel load kn 13.5~90.94
Travel rail P24~P43
Lifting speed m/min 0.8/5
Lifting height m ≥ 6
Total motor power kw 4.31 4.67
Crane speed m/min 3-30
Trolley speed m/min 2-20
Working duty

M5/A5

Spare parts of HD European Overhead Crane:

16 Ton Workshop Overhead Crane System Geared Motor Frequency Control Low Headroom

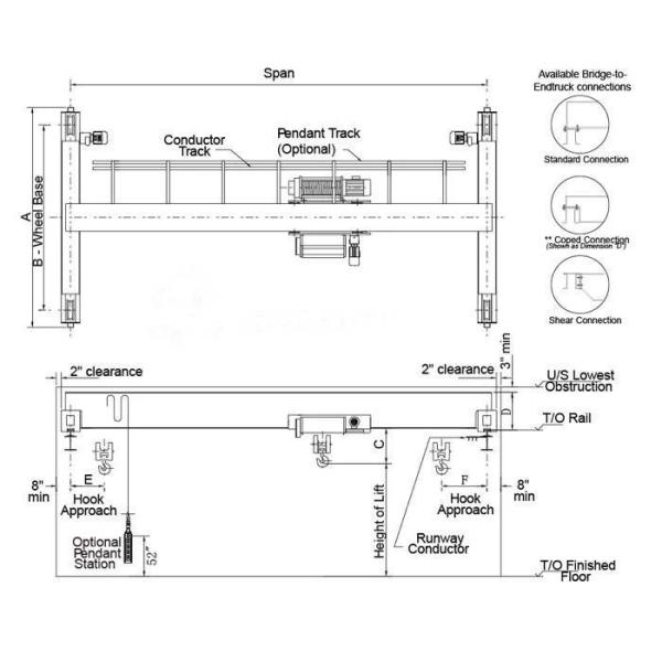
Drawing of European Overhead Crane:

16 Ton Workshop Overhead Crane System Geared Motor Frequency Control Low Headroom

Our Advantage:

The 2,700-plus-member factory covers over 680,000 square meters and has a total asset of RMB 660 million. The 1,200-plus equipment enable the company to independently conduct over 20 technological flows, including lathing, milling, planning and grinding, The 180-plus intermediate and senor technical staff are responsible for R&D and production of all the products. The products have passed CE SGS TUV BV and CU-TR verification, and factory passed ISO9001-2008 international certification, IS014001:1996 environmental and ISO28001-2001 quality, health and safety certification. Our company has perfect quality-control system, strict and comprehensive management system, strong production capability and advanced test measures, guaranteeing high quality, output, competitiveness and market share.

16 Ton Workshop Overhead Crane System Geared Motor Frequency Control Low Headroom16 Ton Workshop Overhead Crane System Geared Motor Frequency Control Low Headroom

Rave Reviews:

“Henan Mine Crane is a supplier worthy of cooperation!”

Oh, do we crack ourselves up?

NO! It's the customers' comments.

16 Ton Workshop Overhead Crane System Geared Motor Frequency Control Low Headroom16 Ton Workshop Overhead Crane System Geared Motor Frequency Control Low Headroom


Product Tags:

garage overhead crane

      

european overhead crane

      
Wholesale 16 Ton Workshop Overhead Crane System Geared Motor Frequency Control Low Headroom from china suppliers

16 Ton Workshop Overhead Crane System Geared Motor Frequency Control Low Headroom Images

Inquiry Cart 0
Send your message to this supplier
 
*From:
*To: Henan Mine Crane Co.,Ltd.
*Subject:
*Message:
Characters Remaining: (0/3000)